Обяви За нас Контакти
Продава 3-СТАЕН
град София, Манастирски ливади
ул. Тодор Каблешков
305 451 €
597 410.23 лв.

(2 213 €, 4 328.25 лв./m2)
Цената е без ДДС
Коригирана в 16:00 на 30 декември, 2025 год.
Обявата е посетена 10186 пъти.
Площ:
138 m2
Етаж:
3-ти от 15
Газ:
НЕ
Строителство:
Тухла, Ще бъде въведен в експлоатация 2028 г.

Описание на имота:


Soul Residence гр. София ул. Тодор Каблешков 95 - Нов проект на Хъс Инвест който е част от групата на ХЪС. Инвеститор с доказан опит и доверие.
Продажби без комисиона за купувача!

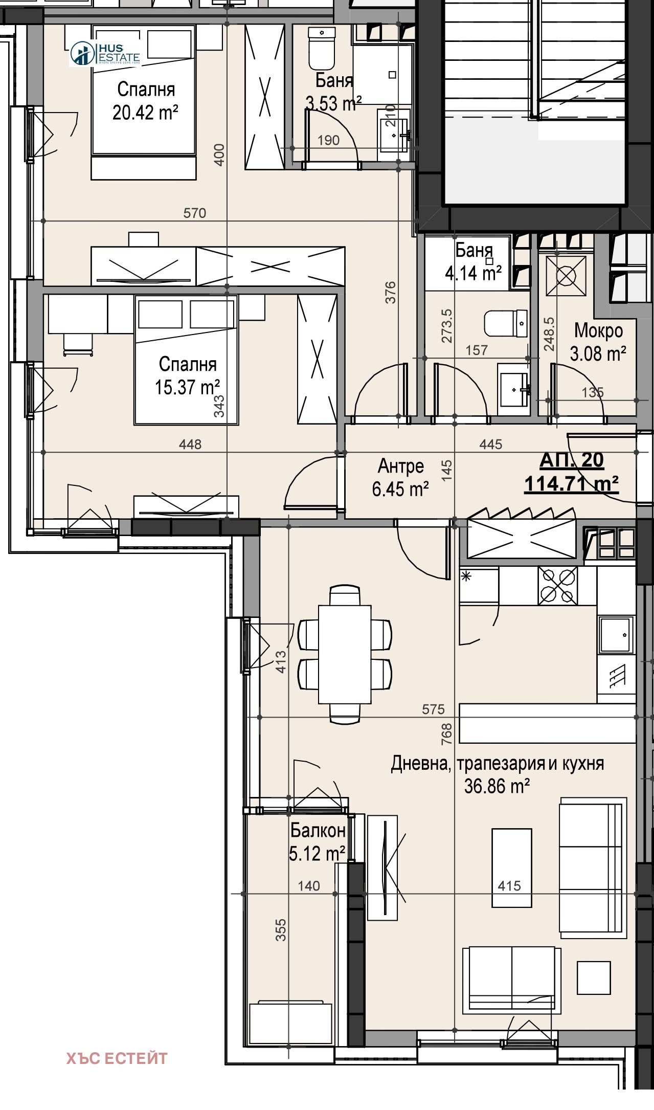
Представяме ви апартамент 13, на етаж 3, който има застроена площ от 114,71м2 и обща застроена площ от 138,84м2.
Изложение - юг-запад; запад
Отопление - извод за климатик

В сградата има свободни апартаменти с 1, 2 и 3 спални на цени от 2200 евро/м2 до 2900 евро/м2 без ДДС.
Налични подземни паркоместа и гаражи, започващи от 33 000 евро без ДДС.

Депозитът за двустаен апартамент е 3000 евро, а за тристаен е 6000 евро.

Базова схема на плащане:
20% при сключване на предварителен договор
20% при Акт 14
20% при монтирана дограма
20% при Акт15
20% при Акт16

Светла височина на таваните - 2,80м.
Дограма - Алуминиева
Изолация - минерална вата
Фасада - окачена
Жилищата са с монтирана индивидуална термопомпа, захранваща подово отопление (монтирано във всяка стая) или с изводи за климатици.

Такса поддръжка:
0.76 евро/кв. м. с ДДС, както следва:
0.64 евро - твърда такса кв. м.
6.75 евро - твърда такса брой автомясто
0.12 евроцента - консуматив кв. м.

Районът е добре развит, на пешеходно разстояние от сградата се намират Южен парк, МОЛ България, МОЛ Парадайс. Кварталът разполага с бърза връзка към ключови булеварди, като бул. Черни връх, бул. България, Околовръстен път. В близост са разположени детски градини и училища както и десетки ресторанти, кафенета и големи супермаркети, като Лидл, Билла, Дар.

За повече информация можете да се свържете с нас:
тел.:0882 330022
тел.:0889 600150
E-mail: sales@husestate-sofia.com
Офис продажби: гр. София, ул.'Сребърна'27В SoHome Residential Park
Особености
Тухла
Асансьор
Интернет връзка
Видео наблюдение
Контрол на достъпа
Възможност за дан. кредит
За контакт:
0882330022
Инвеститор:
ХЪС ЕСТЕЙТ
0884202343
ХЪС ЕСТЕЙТ logo
Медал за прослужено време
В imot.bg от 2019 г.
husestate.imot.bg
Адрес:
област София, гр. София, ул.'Шаварски път'3
http://www.husestate.com
ИЗПРАТИ ЗАПИТВАНЕ
ИЗПРАТИ ЗАПИТВАНЕТО

Продава 3-СТАЕН
град София, Манастирски ливади
ул. Тодор Каблешков
Обява: 1c173684959106299

305 451 €
597 410.23 лв.
(2 213 €, 4 328.25 лв./m2)

Цената е без ДДС
ЗАПАЗИ ОБЯВАТА

Местоположение: град София, Манастирски ливади, ул. Тодор Каблешков

Допълнителни данни за имотите в района и сравнение с други райони

Покажи

Период

и 2 месеца

* Средните цени са определени чрез медианна стойност